Vendu
Vente Appartement
3 chambres avec ascenseur et parking
COLOMBES
Prix nous consulter
* Les honoraires d'agence seront intégralement à la charge de l'acquéreur
  • 5 Pièces
  • 3 Chambres
  • 82 m2
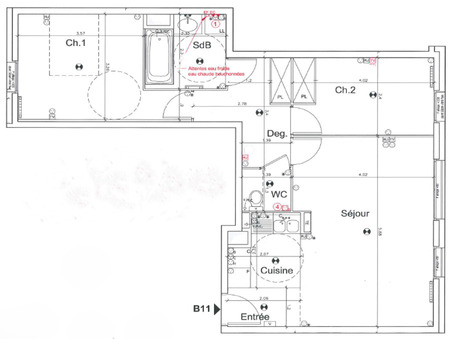
Exclusivité, à proximité de square Edgar Quinet, au 3éme étage, d’un immeuble familial avec ascenseur, appartement traversant de 82m² comprenant une entrée avec WC séparés, un séjour de 27m² avec double – exposition et vues dégagées, une cuisine dinatoire ( possibilité de l’ouvrir sur le séjour), trois chambres, une salle de bains, et un dressing. Une cave et une place de stationnement complètent l’ensemble. La vente vise trois lots situés dans une copropriété formant 8 lots principaux d'habitation. Charges courantes annuelles incluant, chauffa...
Vendu
Vente Maison
Exclusivité : Bois-Colombes Mairie - Maison Familiale de 150 m² - 4 chambres - jardin 200 m²
BOIS COLOMBES
Prix nous consulter
* Les honoraires d'agence seront intégralement à la charge de l'acquéreur
  • 6 Pièces
  • 4 Chambres
  • 150 m2
Située au bout d'une allée privée, dans un quartier pavillonnaire recherché, cette maison de 1890, d'environ 150 m² sur deux niveaux offre un cadre de vie paisible et lumineux. Implantée sur une parcelle d'environ 350 m², elle bénéficie d'un vaste jardin arboré de 200 m² et d'une terrasse orientée plein sud, idéale pour profiter des journées ensoleillées. Le rez-de-chaussée se compose d'une grande pièce de vie exposée sud, baignée de lumière, d'une cuisine spacieuse, d'une salle à manger séparée pouvant faire office de quatrième chambre, d'un...
Vendu
Vente Maison
Maison 3 chambres - jardin sud - stationnement
COLOMBES
Prix nous consulter
* Les honoraires d'agence seront intégralement à la charge de l'acquéreur
  • 5 Pièces
  • 4 Chambres
  • 125 m2
RARE – Quartier Labouret, dans un environnement privilégié au calme à 5mn à pied de la gare de Colombes et de ses commerces, sur une parcelle de 220m², maison de charme d’environ 125 m² habitables. Cette maison comprend au rez-de-chaussée, une entrée, un séjour de 30m², une salle à manger de 13m² avec une cuisine dînatoire attenante, et un WC indépendant. Au 1er étage, un palier, 2 chambres, un bureau ou dressing et une salle de bain avec WC. Au 2éme étage, une chambre avec une salle d’eau. Au sous-sol, on trouve une chambre avec une salle d’ea...
Vendu
Vente Maison
Maison familiale - jardin & garage
COLOMBES
Prix nous consulter
* Les honoraires d'agence seront intégralement à la charge de l'acquéreur
  • 7 Pièces
  • 4 Chambres
  • 140 m2
Colombes - Dans un secteur privilégié parfaitement au calme et à proximité du centre ville, à 10 minutes à pieds de la gare de Colombes sur une parcelle d'environ 400m², maison familiale avec jardin et stationnement véhicules. Elle comprend au rez-de-chaussée : une entrée, un séjour traversant, une grande cuisine dînatoire, un bureau ou dressing, une salle d’eau et un WC séparé. Au premier étage : trois chambres et un bureau, une salle d’eau, et un WC séparé. Au deuxième étage : trois pièces sous combles, réunissables selon le souhait de l’acqu...
Vendu
Vente Appartement
2 pièces - 1 chambre
BOIS COLOMBES
Prix nous consulter
* Les honoraires d'agence seront intégralement à la charge de l'acquéreur
  • 2 Pièces
  • 1 Chambre
  • 43 m2
EXCLUSIVITE - Situé à Bois-Colombes, à 8mn à pied de la gare de Bécon et de ses commerces, ADEQUADOM propose à la vente un appartement au calme et traversant de 43 m², au rez-de-chaussée d’un bel immeuble bourgeois, bien entretenu. Ce bien comprend une entrée avec placard, un séjour côté rue exposé au sud, une cuisine dînatoire, une chambre côté nord avec rangements ainsi qu’une salle de bains avec WC entièrement rénovée. Une cave complète ce bien. L’agence ADEQUADOM vous recommande cet appartement très bien situé, au calme et bien agencé. Char...
Vendu
Vente Maison
Maison 3 chambres - jardin - garage - DPE D
COLOMBES
Prix nous consulter
* Les honoraires d'agence seront intégralement à la charge de l'acquéreur
  • 4 Pièces
  • 3 Chambres
  • 142 m2
Exclusivité, située entre les gares des Vallées et de Colombes et à proximité du collège Lakanal, maison de 142 m² comprenant au rez de chaussée une entrée, une cuisine dînatoire, un salon/ salle à manger de 47m² avec accès direct au jardin, une chambre avec salle de bain et WC. Au 1er étage, un palier- bureau et 2 autres grandes chambres ayant chacune leur salle d’eau dont une avec WC. Des travaux de rafraichissement seront à prévoir. Cette maison est complétée par un jardin de 70m², un sous-sol et un grand garage fermé. L'agence ADEQUADOM vo...
Vendu
Vente Appartement
Duplex - Quartier Victor Hugo
BOIS COLOMBES
Prix nous consulter
* Les honoraires d'agence seront intégralement à la charge de l'acquéreur
  • 3 Pièces
  • 2 Chambres
  • 68.5 m2
EXCLUSIVITE - secteur Victor Hugo - Au sein d'une petite copropriété située dans une rue très calme, l'agence ADEQUADOM vous propose cet appartement en duplex de 3 pièces principales d’environ 68,5m² au sol (49m² loi Carrez). Il comprend : au premier étage un séjour d'environ 28m² avec une cuisine américaine et une salle de bains avec WC, au 2e étage sous toiture deux chambres desservies par un petit palier doté d’un placard. Une cave complète le bien. ADEQUADOM vous recommande ce charmant duplex pour son très bon état et pour sa localisation t...
Vendu
Vente Appartement
Exclusivité - Asnières bourguignons - Grand studio de 44 m² avec coin nuit - Terrasse/Jardin de 42 m
ASNIERES SUR SEINE
Prix nous consulter
* Les honoraires d'agence seront intégralement à la charge de l'acquéreur
  • 2 Pièces
  • 1 Chambre
  • 44 m2
A proximité de la gare de Bois Colombes et de la rue des Bourguignons nous vous proposons un grand studio de 44 m² en rez de jardin d'un immeuble de 1976. Il se compose d' une entrée avec placard, d'un grand séjour, d'un coin nuit, d'une cuisine séparée, d'une salle de bains avec WC. L'ensemble donnant sur une terrasse et jardin orientés sud. Adequadom vous recommande cet appartement pour son emplacement, ses volumes, idéal investisseur ou primo accédant. La vente vise 1 lot principal situé dans une copropriété formant 14 lots d’habitations....
Vendu
Vente Appartement
Mairie - 5 pièces - terrasse et parking
BOIS COLOMBES
Prix nous consulter
* Les honoraires d'agence seront intégralement à la charge de l'acquéreur
  • 5 Pièces
  • 4 Chambres
  • 109 m2
EXCLUSIVITE - Bois-Colombes - Entre la maire et le quartier des Vallées, à 8 minutes à pieds de la gare de Bois-Colombes. Bel appartement familial traversant d'environ 108 m² situé dans une copropriété entretenue, calme et arborée avec gardien. Lumineux et sans aucun vis-à-vis, l'appartement se compose comme suit : entrée, cuisine ouvrable sur séjour, quatre vraies chambres, salle de bains, salle d'eau, WC séparés, dégagement, de nombreux placards et rangements. Un balcon accessible depuis le séjour, une cave vient compléter l'ensemble et une p...
Vendu
Vente Maison
Exclusif : Maison 84 m² 3 chambres - parking
BOIS COLOMBES
Prix nous consulter
* Les honoraires d'agence seront intégralement à la charge de l'acquéreur
  • 4 Pièces
  • 3 Chambres
  • 85 m2
Exclusivité : Quartier Chefson à 5 minutes de la gare de Bois Colombes, nous vous proposons une maison de construction récente de 85 m². Elle se compose d'un beau séjour avec une cuisine ouverte, de plus de 35 m², d’un espace buanderie, d'un WC séparé et d’un débarras. A l’étage trois chambres, une salle de bains et un WC séparé, une petite terrasse extérieure et une place de stationnement complètent la maison. Cette maison est aux normes BBC, elle a des panneaux solaires et un bon DPE C ADEQUADOM vous recommande cette maison pour son emplaceme...
Vendu
Vente Appartement
Grand deux pièces en rez-de-jardin avec stationnement
BOIS COLOMBES
Prix nous consulter
* Les honoraires d'agence seront intégralement à la charge de l'acquéreur
  • 2 Pièces
  • 1 Chambre
  • 56 m2
Exclusivité - Situé entre la mairie et le quartier des Vallées, dans une petite copropriété au sein de laquelle tous les appartements ont été entièrement rénovés, nous vous proposons ce bel appartement en rez-de-jardin comprenant : un séjour avec cuisine ouverte, une chambre avec bureau attenant, une salle de bains, de WC séparés. Un Box fermé est proposé en option à 25.000€ en sus du prix indiqué. L'agence ADEQUADOM vous recommande cet appartement pour son emplacement au calme, son espace extérieur et ses belles prestations. La vente vise 3 lo...
Vendu
Vente Appartement
2 pièces & parking - Gabriel Péri
ASNIERES SUR SEINE
Prix nous consulter
* Les honoraires d'agence seront intégralement à la charge de l'acquéreur
  • 2 Pièces
  • 1 Chambre
  • 52 m2
Exclusivité - Asnières - A 5 minutes à pied du métro Gabriel Péri, au premier étage avec ascenseur d'un immeuble des années 1990 et donnant sur le jardin de la copropriété, appartement de deux pièces principales d'environ 52m² comprenant entrée, séjour, cuisine, une chambre, une salle d'eau, WC séparé et cave. Un emplacement de stationnement au sous-sol de l'immeuble vous est proposé en option à 17.000€ en sus du prix. L'agence ADEQUADOM vous recommande cet appartement lumineux, sans perte de place, parfait pour une première acquisition ou pour...
Vendu
Vente Appartement
3 pièces balcon & jardinet - Centre-ville
BOIS COLOMBES
Prix nous consulter
* Les honoraires d'agence seront intégralement à la charge de l'acquéreur
  • 3 Pièces
  • 2 Chambres
  • 67 m2
EXCLUSIVITE - A deux pas de la gare de Bois-Colombes dans un environnement privilégié, l'agence ADEQUADOM vous propose un appartement de trois pièces entièrement rénové, avec balcon et jardinet comprenant : une entrée, un séjour avec cuisine séparée (possibilité de cuisine ouverte), 2 chambres, salle de bain et WC séparé. Une cave, un jardin à l'est et une terrasse orienté ouest complètent le bien. L'agence vous recommande cet appartement pour sa localisation au calme tout en étant au cœur de la ville et de ses transports mais aussi pour ses e...
Vendu
Vente Maison
Maison 4 chambres - jardins de 200m² - stationnement - bureau
BOIS COLOMBES
Prix nous consulter
* Les honoraires d'agence seront intégralement à la charge de l'acquéreur
  • 7 Pièces
  • 4 Chambres
  • 143 m2
A proximité du quartier Victor Hugo, à 10min à pied de la gare de Bois Colombes, du marché et des commerces, l’agence ADEQUADOM vous propose une jolie maison mansart de charme traversante d’environ 143m² habitable. Sur un terrain de 275m², celle-ci propose un jardin d’accueil et un jardin d’agrément de 150m² sans vis-à-vis exposé sud-est. Ce bien comprend : au rez de chaussée : une entrée, un double séjour d’environ 30 m², une cuisine attenante (qui pourrait être réunie avec le séjour), une véranda et un WC séparé. Au 1er étage : un palier, 2 g...
Vendu
Vente Maison
Maison 4 chambres - garage et jardin
COLOMBES
Prix nous consulter
* Les honoraires d'agence seront intégralement à la charge de l'acquéreur
  • 5 Pièces
  • 4 Chambres
  • 125 m2
EXCLUSIVITE - Colombes - quartier des Vallées proche de Bois-Colombes, dans une très jolie rue calme, sur une parcelle de 300 m², découvrez cette maison bourgeoise de type Mansart d’environ 125 m² (hors sous-sol). Elle comprend au rez-de-chaussée : une entrée, un double séjour, une véranda, une cuisine séparée et des WC indépendants. Au 1er étage : un palier dessert 2 grandes chambres et une salle de bain avec WC. Le 2ème étage propose un palier avec une grande chambre double (facilement transformable en 2 chambres) et une salle de bain avec WC...
Vendu
Vente Appartement
2 pièces avec jardin & parking - Gare de Colombes
COLOMBES
Prix nous consulter
* Les honoraires d'agence seront intégralement à la charge de l'acquéreur
  • 2 Pièces
  • 1 Chambre
  • 45.5 m2
EXCLUSIVITE - A deux pas de la gare de Colombes, l'agence ADEQUADOM vous propose un appartement de deux pièces, au sein d’une copropriété récente avec jardin et terrasse comprenant : une entrée, un séjour, une cuisine séparée, une chambre, et une salle de bain. Un emplacement de stationnement au sous-sol de l'immeuble vous est proposé en option à 17.000€ en sus du prix. L'agence vous recommande cet appartement pour sa localisation au cœur de la ville et de ses transports mais aussi pour ses extérieurs ainsi que la qualité de cet immeuble très r...
Vendu
Vente Appartement
Appartement familial en duplex avec grand terrasse
BOIS COLOMBES
Prix nous consulter
* Les honoraires d'agence seront intégralement à la charge de l'acquéreur
  • 6 Pièces
  • 4 Chambres
  • 152.54 m2
EXCEPTIONNEL - Entre la gare de Bécon et les Vallées, au deuxième et dernier étage d'une copropriété à taille humaine, venez découvrir ce duplex hors du commun doté d'un superbe roof top. L'appartement comprend une vaste entrée, un séjour-salle à manger de 40 m² exposé plein sud, une grande cuisine dinatoire attenante entièrement équipée, un cellier, 4 chambres généreuses dont deux avec salle de bain ou salle d'eau privative, une salle d'eau commune et WC indépendant. Une terrasse panoramique plein ciel d'environ 70m² offrant des vues dégagées...
Vendu
Vente Appartement
Exclusif : Appartement 4 pièces 79 m² - 2 chambres- balcon - cave
BOIS COLOMBES
Prix nous consulter
* Les honoraires d'agence seront intégralement à la charge de l'acquéreur
  • 4 Pièces
  • 2 Chambres
  • 79 m2
Bois Colombes : Rare sur le secteur, proche de la gare et du centre, dans un très bel immeuble ancien entretenu avec gardienne et ascenseur. Nous vous proposons au sixième étage, un appartement de 79 m² qui possède une très agréable vue dégagée sur certains monuments parisiens. Il se compose d’une grande entrée, d’un salon / salle à manger, d’une cuisine séparée possiblement dinatoire, de deux grandes chambres, d’une salle de bains et d’un WC séparé, de nombreux rangements, d'un balcon et d' une coursive. Une cave complète l’appartement, locat...
Dessiner votre zone de recherche